
Bedrooms
4

Built Size
300M²

Plot Size
500M²
Off-Plan Modern Golf Villa for sale – Frontline Golf Luxury on the Costa del Sol
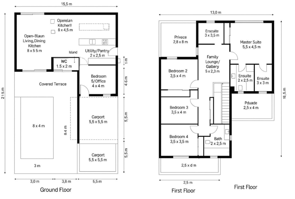
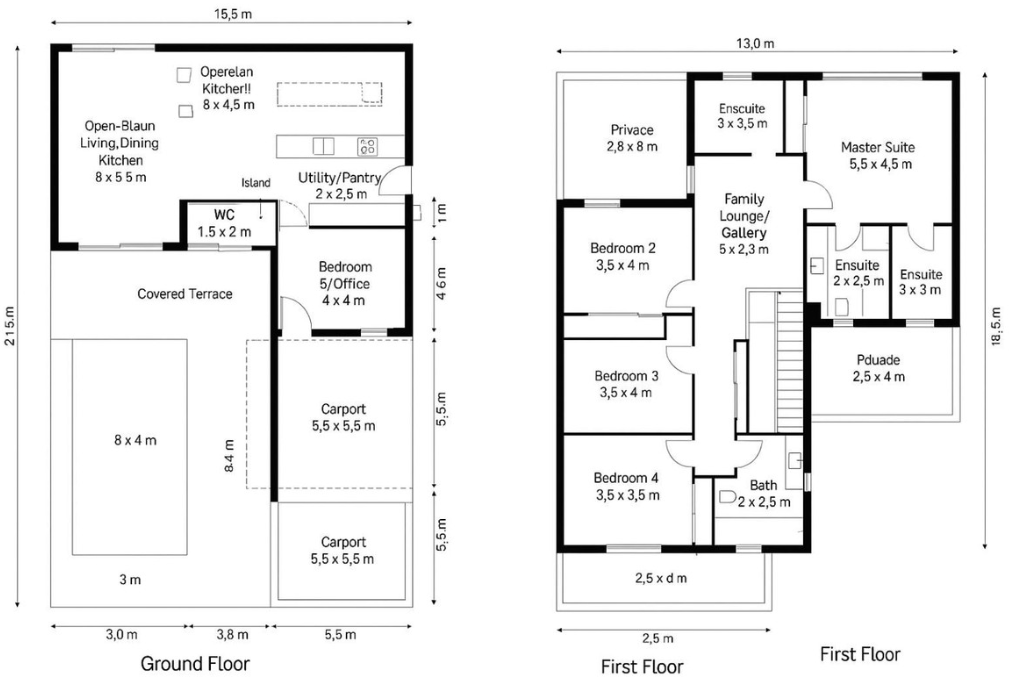
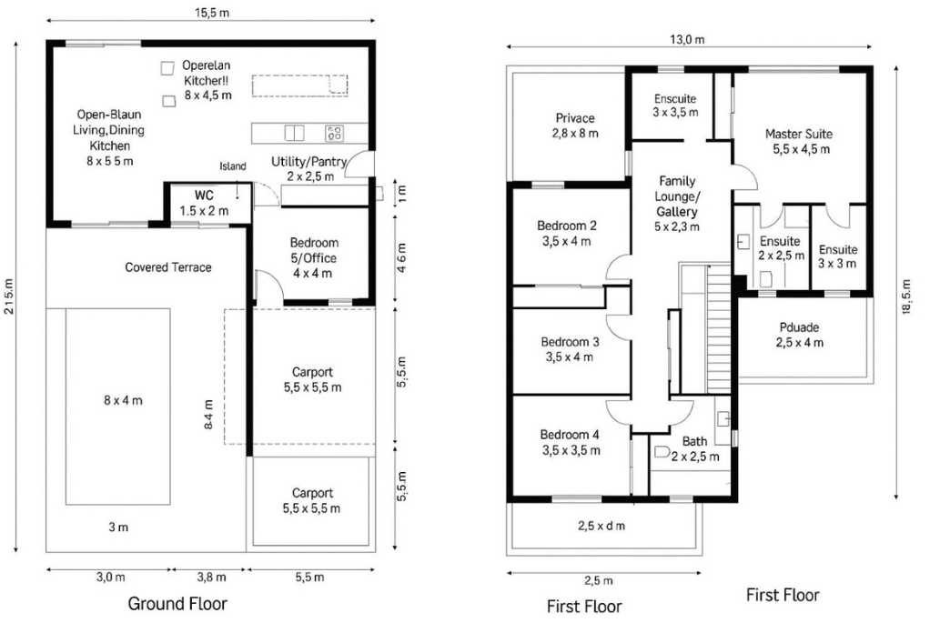
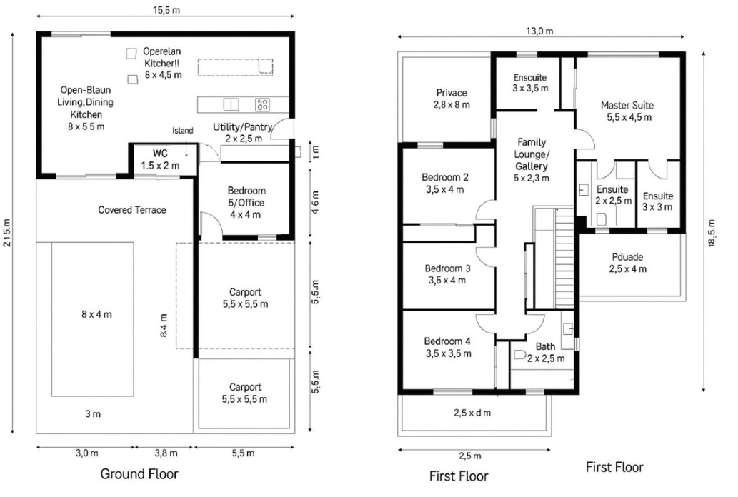
Discover a rare opportunity to own a brand-new contemporary villa set frontline to El Campanario Golf Course, offering direct views across the fairways and an unbeatable Mediterranean lifestyle. This off-plan modern villa blends minimalist architecture with warm natural materials, boho-tropical interiors, and an open-plan layout, creating a perfect harmony of luxury and comfort.
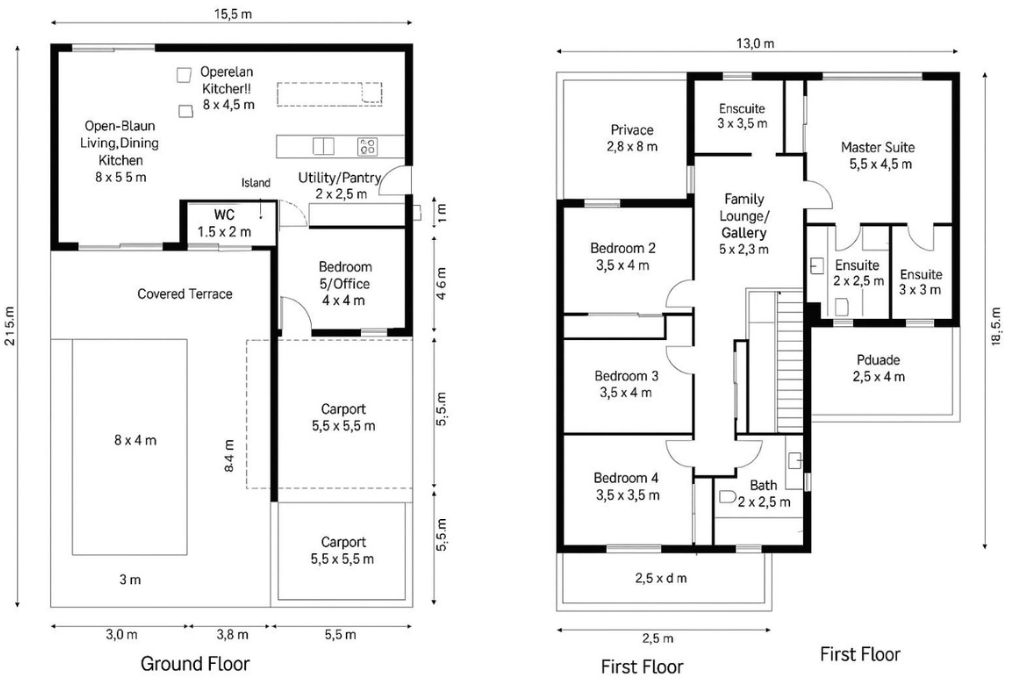
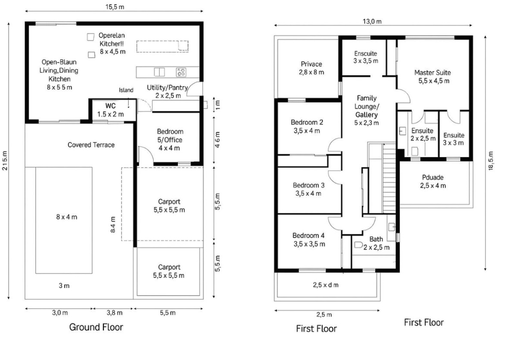
Situated on a 471 m² plot with 280–320 m² built, the villa features 4–5 spacious bedrooms, all with ensuite bathrooms, including a master suite with private terrace. The expansive open-plan living and dining area (8×6 m) boasts floor-to-ceiling glass, ensuring bright, airy interiors and a seamless indoor-outdoor flow. The designer kitchen with a central island connects directly to the outdoor dining and BBQ area, ideal for entertaining and enjoying the Costa del Sol lifestyle.
The villa’s modern flat-roof design is complemented by glass balustrades, and elegant stone and wood finishes, emphasizing clean lines and sophisticated detailing. As an off-plan property, it offers a unique opportunity to personalize your future home before construction, allowing you to select finishes and layouts that reflect your individual style.
Located in El Campanario, one of Estepona’s most desirable golf communities, the villa is just minutes from beaches, restaurants, and the vibrant hubs of Puerto Banús and Marbella. This property combines frontline golf living, modern design, and luxury amenities, offering the perfect setting to create your dream home on the Costa del Sol.
Features and Details
- Front line golf
- Amenities near
- Transport near
- Air conditioning
- Fully furnished
- Utility room
- Storage room
- Alarm
- Security entrance
- Double glazing
- Brand new
- Barbecue
- Guest toilet
- Golf view
- Heated pool
- Underfloor heating (throughout)
- Automatic irrigation system
- Laundry room
- Garden view
- Pool view
- Panoramic view
- Cinema room
- Close to children playground
- Close to sea / beach
- Open plan kitchen
- Close to shops
- Close to town
- Close to port
- Close to schools
- Office room
- Outdoor kitchen
- Close to restaurants
Our team are here to answer all of your questions
If you have any questions about any of the properties listed on our website and would like to find out more, our team will be happy to help! Fill out the form and one of our team will be in touch ASAP, or contact us directly by phone or email.