
Bedrooms
6

Built Size
806M²

Plot Size
4700M²
A unique opportunity to acquire a spacious plot in the prestigious Hacienda Las Chapas, one of Marbella’s most coveted residential locations. Set on elevated terrain with a prime south-facing orientation, this property offers panoramic sea views and comes with a cutting-edge villa project by renowned architect U-Design. Construction is set to begin once the building license is approved, with ample room for personal customization to fit your preferences.
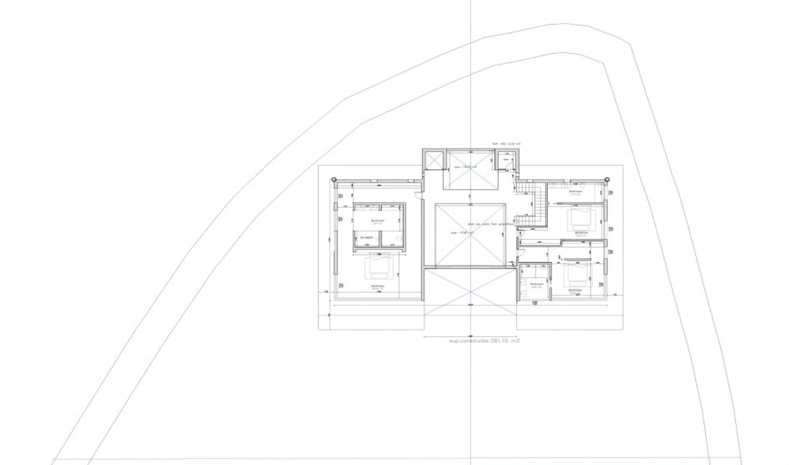
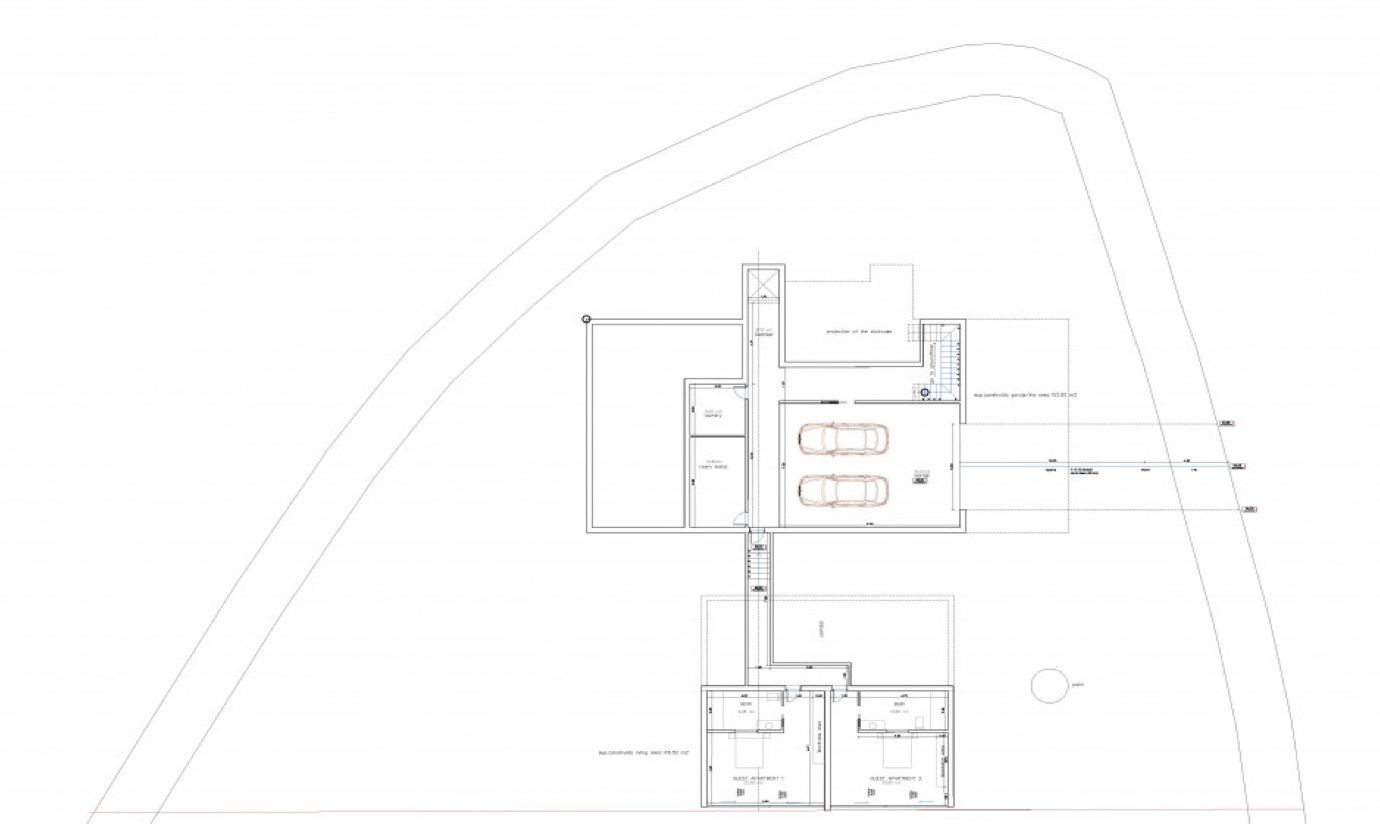
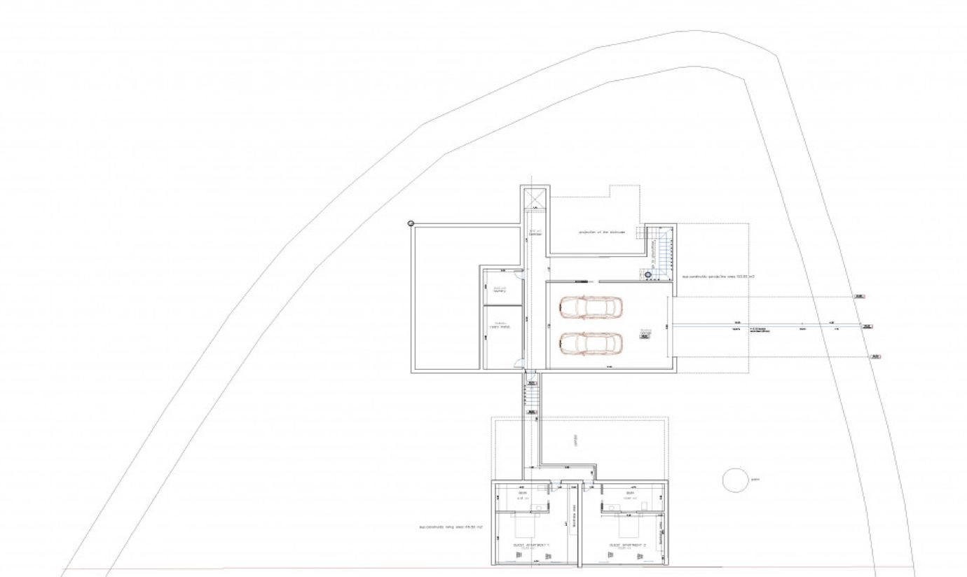
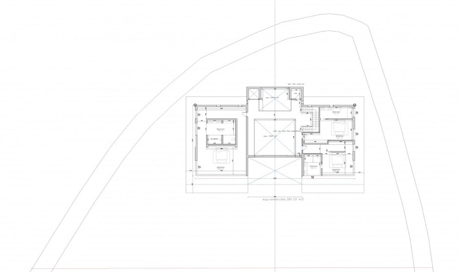
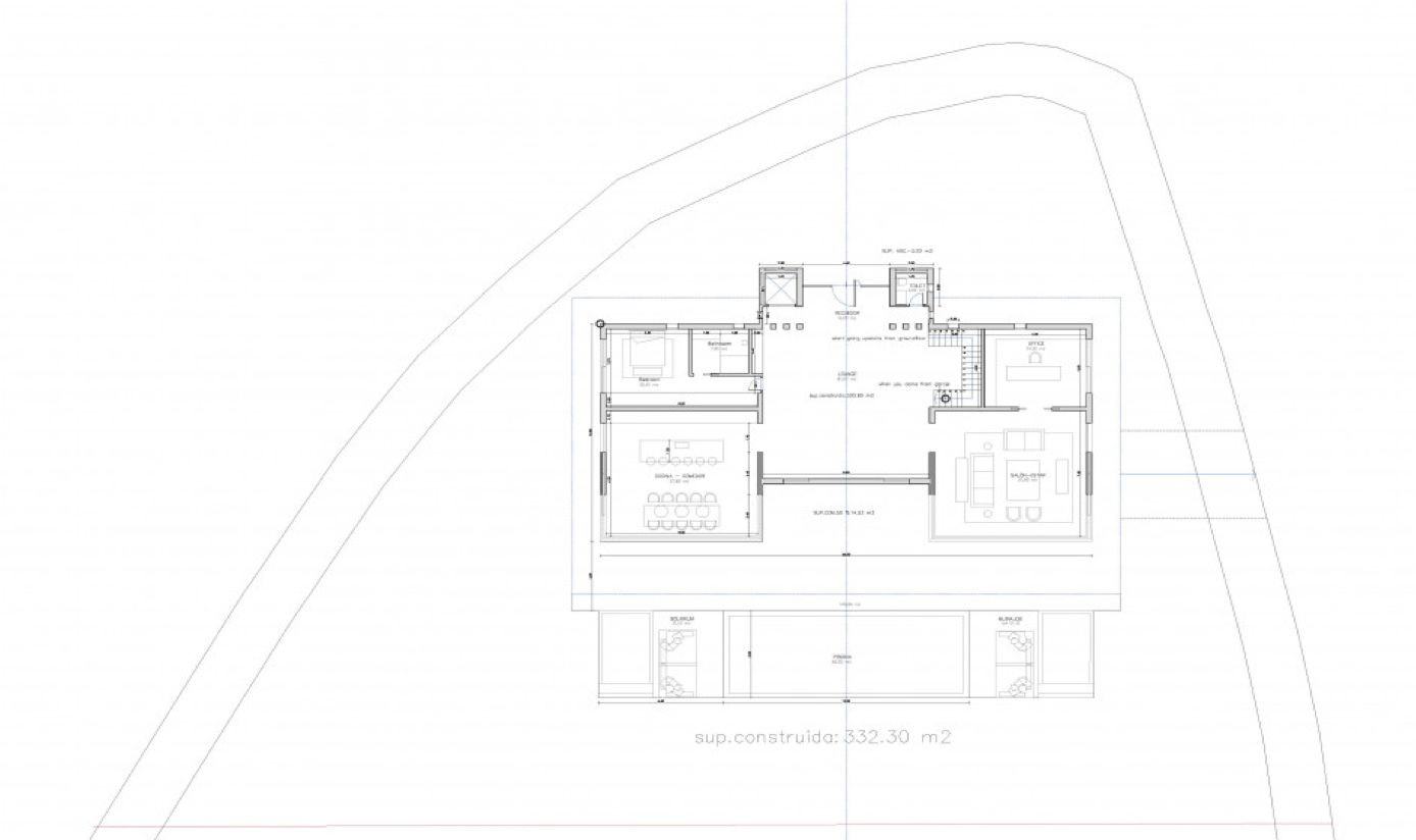
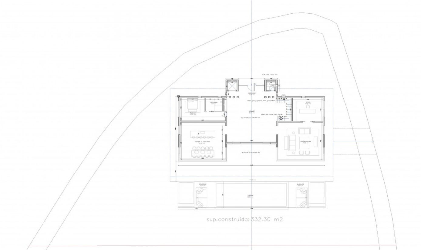
The proposed villa spans three levels, with a total area of 806 m², thoughtfully designed for luxury living. The ground floor features an expansive open-plan living space, a stylish barbecue terrace, a private garage, and a charming covered courtyard. The design also includes an annex with two fully independent apartments, a serene wellness area, a vast swimming pool, and a covered terrace perfect for outdoor living. The basement offers flexible space that can be transformed into a gym, cinema room, or any other leisure area. Surrounded by meticulously landscaped gardens, this home promises ultimate privacy within a secure, exclusive community.
Don’t miss this rare chance to build your dream villa in an unrivaled location, combining elegance, comfort, and incredible views.
Features and Details
- Amenities near
- Air conditioning
- Fully fitted kitchen
- Utility room
- Basement
- Guest room
- Storage room
- Gym
- Brand new
- Barbecue
- Security service 24h
- Kitchen equipped
- Living room
- Sea view
- Laundry room
- Covered terrace
- Electric blinds
- Panoramic view
- Cinema room
- Close to sea / beach
- Close to golf
- Games Room
- Open plan kitchen
- Excellent condition
- Close to shops
- Close to town
- Close to schools
- Surveillance cameras
- Close to restaurants
Our team are here to answer all of your questions
If you have any questions about any of the properties listed on our website and would like to find out more, our team will be happy to help! Fill out the form and one of our team will be in touch ASAP, or contact us directly by phone or email.