
Bedrooms
6

Built Size
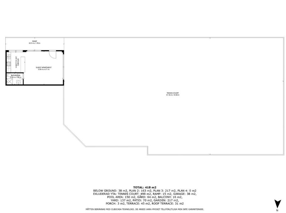
428M²

Plot Size
2010M²
Discover an extraordinary villa where classic Andalusian charm meets modern elegance, offering breathtaking panoramic views of Fuengirola Bay and Mijas Costa. This unique property is designed for both luxurious living and effortless entertaining, making it a true haven for those seeking the very best.
Upon arrival, you are welcomed by an impressive entrance that sets the tone for the villa, complemented by a separate guest entrance for added convenience. Upstairs, five spacious bedrooms await, four with en-suite bathrooms, alongside a cozy living room that opens onto a terrace with sweeping Mediterranean views. A functional home office and practical laundry room—easily transformable into a modern open kitchen—complete the upper level.
The ground floor exudes charm and warmth, centered around an enchanting courtyard featuring a beautiful fountain and shaded areas ideal for relaxing on hot summer days. A generous hallway leads to a fully equipped kitchen, guest toilet, and a large living and dining area with direct access to the private pool, lush garden, and multiple terraces—perfect for both tranquil moments and lively gatherings.
For lovers of entertaining, the villa boasts a spectacular bar with its own bathroom and an elegant dining area, ideal for magical evenings under the open sky. A detached garage, guest apartment with open kitchen and bathroom, and a newly built gym with a bathroom add to the property’s convenience and versatility.
Outside, a beautifully landscaped garden with mature trees and shrubs provides privacy and serenity, while a private tennis court ensures exclusive recreation for residents.
This exceptional villa is an oasis of style, comfort, and functionality—a dream home that combines luxury, privacy, and the breathtaking beauty of the Mediterranean.
Features and Details
- Amenities near
- Transport near
- Air conditioning
- Fully fitted kitchen
- Utility room
- Fireplace
- Satellite TV
- Basement
- Guest room
- Storage room
- Gym
- Alarm
- Double glazing
- Dining room
- Barbecue
- Telephone
- Private terrace
- Living room
- Sea view
- Mountain view
- Automatic irrigation system
- Laundry room
- Internet - Wi-Fi
- Covered terrace
- Fitted wardrobes
- Lift
- Garden view
- Pool view
- Panoramic view
- Tennis / paddle court
- Street view
- Close to children playground
- Close to sea / beach
- Close to golf
- Uncovered terrace
- Games Room
- Glass Doors
- Balcony
- Excellent condition
- Urban view
- Close to shops
- Close to town
- Close to port
- Close to schools
- Guest apartment
- Office room
- Pets allowed
- Kitchenette
- Internet - Fibre optic
- Walk-in closet
- Mature gardens
- Mains electricity supply
- Mains water supply
- Staff accommodation
- Close to restaurants
- City views
Our team are here to answer all of your questions
If you have any questions about any of the properties listed on our website and would like to find out more, our team will be happy to help! Fill out the form and one of our team will be in touch ASAP, or contact us directly by phone or email.